Nowoczesna Stodoła 38m2

Zapewniamy, że nasz projekt domów szkieletowych wykonany zostanie zgodnie ze sztuką budowlaną, w oparciu o system Kanadyjski i certyfikowane drewno konstrukcyjne C24 ze Skandynawii. Dodatkowo, zachowujemy wszystkie wymagane normy unijne PE oraz CE, aby zapewnić najwyższą jakość wykonania. Domy są ocieplone standardowo wełną o grubości 150mm, co zapewnia komfort termiczny i energooszczędność. Zaufaj naszemu doświadczeniu i jakości naszych produktów, aby zrealizować swoje marzenia o wymarzonym domu.

CENA

od 219 900 zł netto

POWIERZCHNIA DO ZABUDOWY

38,5 m2

POWIERZCHNIA CAŁKOWITA

77 m2

MIEJSCA NOCLEGOWE

dla 6 osób

WYKOŃCZENIE

stan deweloperski

Podwalina

Z przyjemnością przedstawiamy Państwu naszą ofertę zabezpieczenia podwaliny pod budowę domu. Zastosowanie potrójnego zabezpieczenia gwarantuje, że konstrukcja domu będzie stabilna i trwała przez wiele lat.

Pierwszym etapem zabezpieczenia podwaliny jest użycie papy o najwyższych parametrach technicznych, która zapewnia wysoką wytrzymałość na metr szerokości. Następnie, podwalina jest osadzana na specjalnej folii, która dodatkowo chroni konstrukcję przed wilgocią i innymi szkodliwymi czynnikami zewnętrznymi.

Ostatnim etapem zabezpieczenia podwaliny jest impregnacja konstrukcji, która zabezpiecza drewno przed pleśnią, grzybami oraz owadami. Dzięki naszej ofercie możecie mieć Państwo pewność, że Wasz dom będzie stabilny i trwały przez wiele lat, a my z przyjemnością pomożemy Wam zrealizować Wasze marzenie o pięknym i funkcjonalnym domu.

Elewacja

Jesteśmy dumni z faktu, że nasza firma oferuje najwyższej jakości wykończenie elewacji budynków. W naszej ofercie znajduje się między innymi elewacja wykonana z drewna świerkowego o grubości 20 mm, która może być ułożona w układzie pionowym lub poziomym. W celu zapewnienia długotrwałej ochrony przed szkodliwymi czynnikami atmosferycznymi, zastosowaliśmy olej bezbarwny Kompans. Ten specjalny rodzaj oleju jest odporny na promieniowanie UV, co oznacza, że wykończenie elewacji będzie zachowywać swój naturalny kolor i estetyczny wygląd przez wiele lat bez narażenia na odbarwienia. Zaufaj naszej firmie i wybierz nasze rozwiązania, aby zyskać pewność trwałego i pięknego wykończenia elewacji Twojego budynku.

Stolarka okienna i drzwiowa

Jesteśmy firmą, która specjalizuje się w budowie domów drewnianych. Oferujemy nie tylko pełne usługi budowlane, ale również wykonujemy stolarkę okienną na indywidualne zamówienie naszych klientów. Jeśli szukasz oryginalnych rozwiązań, które pozwolą na wprowadzenie naturalnego klimatu do Twojego domu, to nasza oferta jest idealna dla Ciebie.

W standardzie oferujemy stolarkę okienną dwuszybową oraz możliwość wykonania stolarki okiennej według indywidualnego projektu. Dzięki temu można stworzyć oryginalne i funkcjonalne okna oraz drzwi wejściowe, które idealnie pasują do stylu Twojego domu.

Nasza stolarka okienna to nie tylko produkt wysokiej jakości, ale również element dekoracyjny, który w naturalny sposób uzupełni wystrój Twojego wnętrza.  Oferujemy wykonanie frontu w pełni przeszklonego z drzwiami wejściowymi oraz dodatkowo okna w kuchni i łazience. Wszystkie nasze produkty wykonujemy z najwyższej jakości materiałów , które pochodzi z certyfikowanych źródeł. Dzięki temu nasza stolarka okienna jest trwała, solidna i odporna na działanie czynników zewnętrznych. Jesteśmy przekonani, że nasze rozwiązania zadowolą nawet najbardziej wymagających klientów. Zapraszamy do kontaktu z nami, aby dowiedzieć się więcej na temat naszych usług i skorzystać z naszej oferty.

Pokrycie dachowe

Cieszymy się, że możemy zaoferować naszym klientom najwyższej jakości rozwiązania z zakresu pokrycia dachów. Nasza firma specjalizuje się w wykonaniu dachów pokrytych blachą na rąbek w eleganckim kolorze antracytu. Wszystkie obróbki blacharskie, które wykonujemy, również są utrzymane w tym samym kolorze, co zapewnia spójność i estetyczny wygląd całego dachu. Dodatkowo, oferujemy naszym klientom kompleksowe rozwiązania, w tym orynnowanie w kolorze antracyt, co pozwala na uzyskanie spójnego wyglądu całego dachu. Dzięki naszym produktom i usługom, Państwa dach będzie nie tylko odporny na działanie warunków atmosferycznych, ale również będzie prezentował się estetycznie i nowocześnie. Zaufaj naszej firmie i wybierz nasze rozwiązania, aby cieszyć się dachem, który będzie nie tylko funkcjonalny, ale również będzie stanowił ozdobę Twojego budynku.

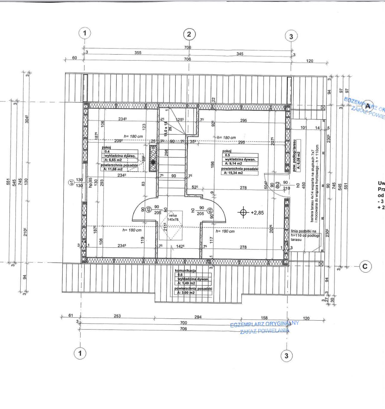
Układ pomieszczeń

Nasza propozycja układu pomieszczeń została stworzona z myślą o Twoim komforcie i wygodzie w codziennym życiu. W planie domu proponujemy otwarty aneks kuchenny, który będzie idealnym miejscem na przygotowywanie posiłków i spędzanie czasu z rodziną i przyjaciółmi. W bezpośrednim sąsiedztwie znajduje się otwarty salon, który zapewni przestrzeń do relaksu i wypoczynku. Warto dodać, że w naszej propozycji zaprojektowaliśmy wydzielone pomieszczenie na Toaletę, aby zapewnić prywatność i intymność w trakcie korzystania z toalety. Na piętrze domu znajduje się antresola połowiczna, która może być wykorzystana jako dodatkowa przestrzeń do wypoczynku lub jako biuro. Otwarta konstrukcja antresoli umożliwi swobodny przepływ powietrza i światła w całym pomieszczeniu. Nasza propozycja układu pomieszczeń została zaprojektowana z myślą o Twoich potrzebach, zapewniając funkcjonalność, wygodę i komfort w codziennym życiu.

Wykończenie wnętrz

Nasz standard wykończenia wnętrz to gwarancja wysokiej jakości i komfortu w Twoim nowym domu. Wszystkie ściany wewnątrz zostaną wykończone boazerią naturalną lub płytą karton-gips, co zapewni eleganckie i przytulne wnętrze. Nowoczesne schody proste modułowe to nie tylko element dekoracyjny, ale również funkcjonalny, który ułatwi poruszanie się po domu. Na antresoli znajdziesz deski podłogowe, które są trwałe i estetyczne. Oczywiście, dom zostanie wyposażony w instalację wodno-kanalizacyjną i instalację elektryczną, które spełnią wszelkie wymagania. Standardowo montujemy drzwi zewnętrzne oraz przy płycie fundamentowej, podłoga na parterze zostanie wyłożona panelem podłogowym. Liczne obróbki wewnętrzne dopełnią całości, nadając domowi indywidualnego charakteru.

W standardzie nie ma drzwi wewnętrznych. Wykończenie wnętrza w płycie karton-gips nie obejmuje gładzi i malowania.

Ogrzewanie w naszych domkach

1. Ogrzewanie Podłogowe na Podczerwień: Oferujemy nowoczesne ogrzewanie podłogowe na podczerwień, które zapewnia równomierne i przyjemne ciepło. To rozwiązanie jest energooszczędne i idealne dla osób ceniących komfort oraz nowoczesną technologię.

2. Klimatyzator z Funkcją Grzania: Nasze domki są wyposażone w klimatyzatory, które nie tylko chłodzą w upalne dni, ale także posiadają funkcję grzania. Dzięki temu mają Państwo możliwość szybkiego i efektywnego dostosowania temperatury we wnętrzu.

3. Koza: Dla miłośników tradycyjnego ogrzewania oferujemy również piece typu „koza”. To klasyczne rozwiązanie, które nadaje wnętrzu niepowtarzalny charakter i zapewnia przyjemne ciepło.

4. Kominek: Wybrane domki są wyposażone w kominki, które stanowią nie tylko doskonałe źródło ciepła, ale także dodają wnętrzu przytulności i stylu. Idealne rozwiązanie na romantyczne wieczory przy blasku ognia.

5. Pompa Ciepła: Oferujemy również ogrzewanie za pomocą pompy ciepła, która jest wydajnym i ekologicznym źródłem energii. Pompa ciepła wykorzystuje naturalne źródła ciepła, zapewniając stabilną temperaturę w domku przy minimalnym wpływie na środowisko.

Niezależnie od tego, czy preferują Państwo nowoczesne rozwiązania, czy tradycyjne metody ogrzewania, w naszych domkach znajdą Państwo opcję odpowiadającą Waszym potrzebom. Dbamy o komfort i zadowolenie naszych gości, dlatego oferujemy różnorodność wyboru oraz gwarantujemy, że każde z tych rozwiązań jest niezawodne i efektywne. Zapraszamy do kontaktu w celu uzyskania więcej informacji

Projekt architektoniczno-budowlany

Projekt architektoniczno-budowlany stanowi jedną z najważniejszych części w całym procesie realizacji inwestycji. Jest to kompleksowy dokument, który detalicznie opisuje planowane przedsięwzięcie, począwszy od koncepcji architektonicznych, a skończywszy na technicznych aspektach konstrukcyjnych. Obejmuje on zarówno rysunki, jak i opisy, a także załączniki specjalistyczne, które razem dają pełny obraz planowanej inwestycji.

KONFIGURATOR

Zapraszamy do skorzystania z naszego konfiguratora oferty. Dodaj wybrane parametry, napisz pytanie i wyślij formularz. Chętnie odpowiemy na wszystkie pytania dotyczące waszego domu marzeń.

Masz pytania? Zapraszamy do kontaktu.